- Sandra Cantu
- Premier Realty Group
- Mobile: 830.765.8566
- Office: 830.488.6166
- sandracantu1212@gmail.com
- Home
- Property Search
- Search results
- 803 County Road 6612, Devine, TX 78016
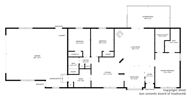
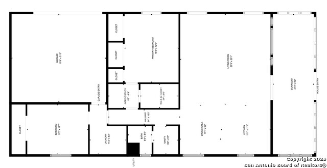
Property Photos

- MLS#: 1913929 ( Farm Ranch )
- Street Address: 803 County Road 6612
- Viewed: 19
- Price: $999,900
- Price sqft: $274
- Waterfront: No
- Year Built: 1997
- Bldg sqft: 3647
- Bedrooms: 5
- Total Baths: 3
- Full Baths: 3
- Days On Market: 33
- Additional Information
- County: MEDINA
- City: Devine
- Zipcode: 78016
- District: Devine
- Elementary School: Ciavarra
- Middle School: Devine
- High School: Devine
- Provided by: Leverage Realty Consulting Group
- Contact: Thomas Martinez
- (210) 878-6683

- DMCA Notice
-
DescriptionLook no further as this stunning 36 acre estate in Devine, Texas offers it all and is just 5 minutes to I 35 and 20 minutes to San Antonio! Nestled among dozens of majestic century old oak trees, you'll find two distinctive homes with a combined 3,647 square feet (SF) of living space, a massive 5,000SF multi use structure at the heart of the estate, fully equipped with water, electricity, LED fixtures, and commercial oscillating fans, and over 6,000SF of auxiliary space throughout the property for livestock, storage, and recreation. Nearly all 36 acres are designated as improved irrigated pasture, ideal for farming, ranching, and horticulture endeavors. Water and electricity are abundant across the property with district water, multiple wells, a canal irrigation system, an 11,000 gallon cistern, a half acre stock pond, a picturesque 31 foot windmill, and three electrical meters. The property is further complemented by an inviting pool, a charming 250SF treehouse deck, and a brilliant 330SF sunroom. All of the property's improvements were thoughtfully designed to immerse you in its natural beauty. Whether you're seeking a serene private and/or company retreat, a dynamic space for entertaining and recreation, and/or an investment (e.g., rental properties, event venue, etc.), this oak studded estate delivers. Experience unparalleled country living with easy access to San Antonio, Castroville, Lytle, Pearsall, and Jourdanton. Currently Ag Exempt. Low Taxes. No Restrictions. Devine ISD. Schedule your tour today!
Property Location and Similar Properties
All
Similar
Features
Possible Terms
- Cash
- Conventional
- FHA
- VA
- Texas Vets
- Investors OK
Agricultural
- Yes
Amenities
- Additional Structures
- Barn
- Detached Quarters
- Hay Barn
- Outdoor Arena
- Dog Kennel
- Storage Building
- Exterior Lighting
- Pool/Deck
- Satelite Dish
- Mobile Home
- Fenced
- Irrigation System
- Garage
- House
- Manufactured Home
- Tractor Shed
- Workshop
- Other - See Remarks
Apprx Age
- 28
Available W Lease
- No
Contract
- Exclusive Right To Sell
Description
- Raw Land
- Cultivated
- Pasture
- Wooded
- Cleared
- Ag Exempt
- Hunting Permitted
- Mature Trees (ext feat)
- Secluded
- Improved Water Front
Disabled
- No
Distance Frm S A
- 25-50 MI from Downtown
Elementary School
- Ciavarra
Exterior Features
- Wood
- Siding
- Aluminum
- Log
- Metal Structure
High School
- Devine
Homestead
- Yes
Instdir
- Take I-35 south to exit 127 (FM471 Natalia). Follow county road (CR) 6767 and go right on Walton St (at the Valero/Love's). Follow Walton to TX-132 S/2nd St and go left at the stop sign. Right on CR6725/Big Key Rd. Left on FM463 S. Right on CR6612.
Irrigation Wells
- 2+ Wells
- Other
Kitchen Length
- 11
Legal Description
- SAN ANTONIO TRUST SUBDIVISION OF LANDS BLOCK 33 LOTS 40 & 45
Lot Improvements
- Gravel
- Dirt
- Easement Road
- Private Road
- Other
Middle School
- Devine
Mineral Rights
- All Conveyed
- Other - See Remarks
Number Of Cultivated Acres
- 35
Number Of Irrigated Acres
- 35
Number Of Level Acre
- 35
Number Of Pasture Acre
- 35
Other
- No
Other Structures
- Arena
- Barn(s)
- Boat House
- Guest House
- Mobile Home
- Other
- Outbuilding
- RV/Boat Storage
- Second Garage
- Second Residence
- Shed(s)
- Storage
Other Tax
- 278.22
Owner Lrealreb
- No
Ph To Show
- 210-878-6683
Zoned
- Residential
- Ranch
- Farm
- Recreational
- Beef Cattle
- Dairy
- Fishing
- Grazing
- Horse Farm
- Hunting
- Orchard
- Poultry
- Sub Development
- Truck Farm
- Other
Property Type
- Farm Ranch
Recent Rehab
- No
Restrictions
- Other
School District
- Devine
School Tax
- 1227.94
Sewer
- Septic
Shallow Water
- 2+ Wells
- Windmill
- Other
Source Sqft
- Appsl Dist
Style
- One Story
- Ranch
- Traditional
- Texas Hill Country
- Manufactured Home - Double Wide
- Other
Terrain
- Level
Total Acres
- 36
Total Tax
- 2730.49
Type Of Construction
- Frame
- Metal
- Other
Utilities Available
- Electricity
- Water
- Cable TV
- High Speed Internet
- Butane/Propane Leased
- Other
Utilities On Site
- Electricity
- Water
- Other
Utility Supplier Elec
- Medina EC
Utility Supplier Gas
- Several
Utility Supplier Grbge
- Several
Utility Supplier Other
- Rock Solid
Utility Supplier Water
- Medina
Valueimpr
- 1299000
Views
- 19
Water
- Water Access
- Canal
- Other
Water/Sewer
- Water System
- Private Well
- Septic
- Water Storage
- Other
Year Built
- 1997
Listing Data ©2025 San Antonio Board of REALTORS®
The information provided by this website is for the personal, non-commercial use of consumers and may not be used for any purpose other than to identify prospective properties consumers may be interested in purchasing.Display of MLS data is usually deemed reliable but is NOT guaranteed accurate.
Datafeed Last updated on November 12, 2025 @ 12:00 am
©2006-2025 brokerIDXsites.com - https://brokerIDXsites.com

